
Recently renovated offices with modern finishes.
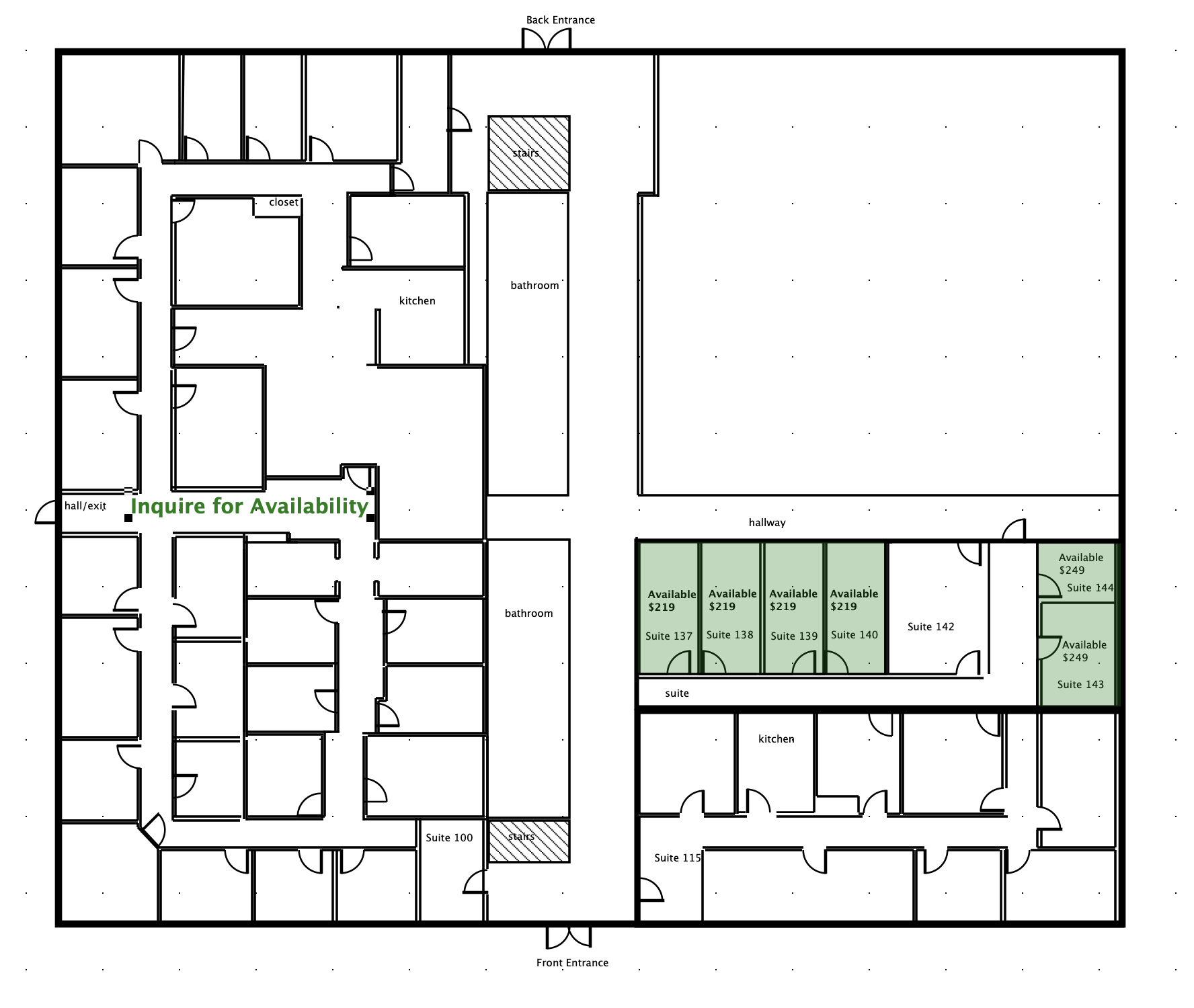
All utilities includedRent starting at $225/month
Enjoy a professional work environment with competitive rates and flexible leasing options.

1031 E Mountain St
Bldg 320
Kernersville, NC 27284